Трансформаторы ТСЛ, ТСЗЛ 25 кВА



Трансформаторы ТСЛ и ТСЗЛ 25 кВА — это сухие силовые трансформаторы с литой изоляцией, предназначенные для работы в сетях переменного тока напряжением 6 или 10 кВ, частотой 50 Гц, с выходным напряжением 0,4 кВ.
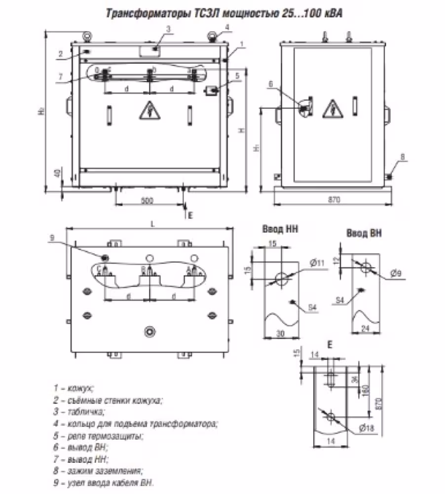
Модель ТСЛ-25/10 поставляется в открытом исполнении (степень защиты IP00) и рассчитана на установку в закрытых электротехнических помещениях. ТСЗЛ-25/10 оснащён защитным кожухом со степенью защиты IP21, что позволяет размещать его в местах с возможным доступом людей — в цехах, подвалах, технических зонах жилых и общественных зданий.
Оборудование отличается низким уровнем шума (50 дБА), минимальными потерями холостого хода (170 Вт) и короткого замыкания (540 Вт), а также высокой устойчивостью к токам КЗ и перенапряжениям. Благодаря отсутствию масла трансформаторы полностью пожаробезопасны и экологичны, не требуют маслосборников и сложного обслуживания.
Масса трансформатора — 415 кг в исполнении ТСЛ, 505 кг — в кожухе ТСЗЛ. Габариты (Д×Ш×В): 940×850×560 мм (без кожуха), 1230×850×560 мм (с кожухом).
