
Трансформаторы силовые сухие трехфазные с литой изоляцией напряжением до 10 кВ предназначены для преобразования электроэнергии в сетях энергосистем и потребителей электроэнергии в условиях внутренней установки умеренного (от минус 45 °С до плюс 40 °С) или холодного (от минус 60 °С до плюс 40 °С) климата. Окружающая среда невзрывоопасная, не содержащая пыли в концентрациях, снижающих параметры изделий в недопустимых пределах. Трансформаторы не предназначены для работы в условиях тряски, вибрации, ударов, в химически активной среде. Высота установки над уровнем моря не более 1000 м. По требованию заказчика - до 2500 м.
Номинальная частота 50 Гц. Регулирование напряжения осуществляется в диапазоне до ±5% на полностью отключенном трансформатора (ПБВ) путем перестановки перемычек ступенями по 2,5%.
Согласно ГОСТ 11677-85 предельные отклонения технических параметров трансформаторов составляют:
напряжение короткого замыкания ±10%;
потери короткого замыкания на основном ответвления +10%;
потери холостого хода +15%;
полная масса +10%.
В категории трехфазных сухих трансформаторов с литой изоляцией предприятием представлены потребителю различные серии и модификации изделий:
трансформаторы серии ТСЛ, ТСЗЛ классов напряжения до 10 кВ;
трансформаторы серии ТСГЛ, ТСЗГЛ, ТСЗГЛФ, ТСЗГЛФ11, ТСДГЛ, ТСДЗГЛ, ТСДЗГЛФ, ТСДЗГЛ11, ТСДЗГЛФ11 классов напряжения до 10 кВ с обмотками из алюминия;
трансформаторы серии ТСГЛ20, ТСЗГЛ20, ТСЗГЛФ20, ТСЗГЛ21, ТСЗГЛФ21, ТСДГЛ20, ТСДЗГЛ20, ТСДЗГЛФ20, ТСДЗГЛ21, ТСДЗГЛФ21 классов напряжения до 10 кВ 0 обмотками из меди.
Трансформаторы комплектуются обмотками склассом нагревостойкости изоляции F.
Трансформаторы выпускаются в следующих исполнениях:
без кожуха со степенью защиты IР00;
с кожухом со степенью защиты от IР21 и выше (от IР31 до IР43).
По требованию заказчика сухие трансформаторы могут быть укомплектованы виброизопяторами, устанавливаемыми при монтаже трансформатора под транспортный ролик или опорные рамы.
По требованию заказчика могут быть изготовлены сухие трансформаторы, предназначенные для работы в составе частотного преобразователя.
Каждый трансформатор подвергается приемо-сдаточным испытаниям, что гарантирует полное соответствия изделия требуемым техническим характеристикам.
Трансформаторы серии ТСГЛ, ТСЗГЛ, ТСЗГЛФ, ТСЗГЛ11, ТСЗГЛФ11, ТСДГЛ, ТСДЗГЛ, ТСДЗГЛФ, ТСДЗГЛ11, ТСДЗГЛФ11 классов напряжения до 10 кВ
Трансформаторы силовые сухие трехфазные с геафолевой литой изоляцией напряжением до 10 кВ предназначены для преобразования электроэнергии в сетях энергосистем и потребителей электроэнергии переменного тока номинальной частоты 50 Гц.
Трансформаторы комплектуются обмотками фирмы «Siemens», материал обмоток - алюминий.
Для изоляции обмоток используется эпоксидный компаунд с кварцевым напопнителем (геафоль). Дополнительно обмотки усилены стеклосеткой, что исключает возникновение трещин в эпоксидном компаунде даже при перегрузке трансформаторов. Геафопь не оказывает вредного влияния на окружающую среду, не выделяет токсичных газов даже при воздействии дуговых разрядов. Благодаря такой изоляции обмотки не требуют технического обслуживания.
Для измерения и контроля температуры трансформаторы комплектуются цифровым температурным реле ТР-100 с тремя датчиками температуры типа РТ100, встроенными в обмотки НН. На специальные трансформаторы (для питания полупроводниковых преобразователей и др.), а также по требованию заказчика устанавливается дополнительный датчик для контроля температуры магнитопровода.
Температурное реле ТР-100, оборудованное интерфейсом RS-485 MODBUS RTU, подключается на постоянное или переменное напряжение от 24 до 260 В.
При опасном повышении температуры происходит срабатывание выходного реле управления целями предупредительной сигнализации. Если повышение температуры продолжается и температура превышает предельно допустимое значение, срабатывает выходное реле управления аварийной сигнализацией (аварийным отключением трансформатора).
По требованию заказчика могут быть установлены другие виды приборов для контроля температурного режима.
Трансформаторы ТСГЛ, ТСДГЛ (без защитного кожуха) комплектуются датчиками температуры с длиной кабелей десять метров, что позволяет перенести реле тепловой защиты или ящик управления вентиляторами для ТСДГП на ограждающие конструкции или другие конструкционные элементы подстанции (на расстояние до шести метров) для обеспечения его безопасного и удобного обслуживания. По требованию заказчика могут быть установлены другие виды тепловой защиты.
Трансформаторы ТСДГЛ, ТСДЗГЛ, ТСДЗГЛФ, ТСДЗГЛ11, ТСДЗГЛФ11 укомплектованы системой принудительного охлаждения, состоящей из ящика управления и вентиляторов охлаждения обмоток. Использование принудительной вентиляции позволяет добиться увеличения мощности сухих трансформаторов до 40%.
Электрические и шумовые характеристики трансформаторов
Номинальные напряжения: ВН -6; 6,3; 10; 10,5 кВ, НН - 0,4 кВ; схема и группа соединения обмоток - Д/Ун-1 1, У/Ун-0
Размеры и масса трансформаторов ТСГЛ и ТСДГЛ

Трансформаторы ТСГЛ, ТСДГЛ мощностью 100...2500 кВ·А

обмотка ВН;
вывод НН;
серьга для подъема трансформатора;
табличка;
верхняя ярмовая балка;
клеммы регулирования напряжения;
нижняя ярмовая балка;
зажим заземления;
опорная рама;
ввод ВН;
узел крепления кабеля ВН;
транспортный ролик;
вентиляторы (для ТСДГЛ);
ящик управления вентиляторами в транспортном положении (для ТСДГЛ).
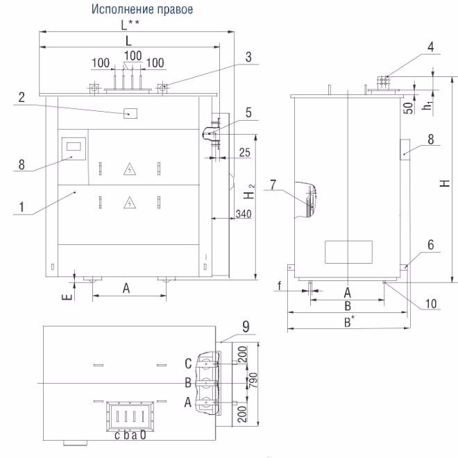
Размеры и масса трансформаторов ТС3ГЛ и ТСДЗГЛ с подводом НН и ВН кабелем

Трансформаторы ТСЗГЛ, ТСДЗГЛ мощностью 100...2500 кВ·А с подводом НН и ВН кабелем

кожух;
табличка;
пластина для подъема трансформатора;
узел ввода кабеля ВН;
вывод НН;
ввод ВН;
зажим заземления;
клеммы регулирования напряжения;
алюминевый лист для выполнения ввода кабелей НН через крышу;
ящик управления вентиляторами (для ТСДЗГЛ);
транспортный ролик.
Размеры и масса трансформаторов ТС3ГЛ и ТСДЗГЛ с выводами НН на крыше

Трансформаторы ТСЗГЛ, ТСДЗГЛ мощностью 100...2500 кВ·А с выводами НН на крыше

кожух;
табличка;
пластина для подъема трансформатора;
узел ввода кабеля ВН;
вывод НН;
ввод ВН;
зажим заземления;
клеммы регулирования напряжения;
ящик управления вентиляторами (для ТСДЗГЛ);
транспортный ролик.
Размеры и масса трансформаторов ТСЗГЛ и ТСДЗГЛ с выводами НН и ВН на крыше

Трансформаторы ТСЗГЛ, ТСДЗГЛ мощностью 100...2500 кВ·А с выводами НН и ВН на крыше

кожух;
табличка;
пластина для подъема трансформатора;
вывод НН;
ввод ВН;
зажим заземления;
клеммы регулирования напряжения;
ящик управления вентиляторами (для ТСДЗГЛ);
транспортный ролик.
Размеры и масса трансформаторов ТСЗГЛФ и ТСДЗГЛФ с выводами НН на крыше

Трансформаторы серии ТСЗГЛФ, ТСДЗГЛФ мощностью 100...2500 кВ·А с выводами НН на крыше


кожух;
табличка;
пластина для подъема трансформатора;
вывод НН;
ввод ВН;
зажим заземления;
клеммы регулирования напряжения;
ящик управления вентиляторами (для ТСДЗГЛФ);
ящик ввода кабелей ВН (по заказу) см. приложение;
транспортный ролик.
Размеры и масса трансформаторов ТСЗГЛ11 и ТСДЗГЛ11

Трансформаторы серии ТС3ГЛФ11, ТСДЗГЛФ11 мощностью 100...2500 кВ·А

кожух;
табличка;
пластина для подъема трансформатора;
вывод НН;
ввод ВН;
зажим заземления;
клеммы регулирования напряжения;
ящик управления вентиляторами (для ТСДЗГЛ11);
транспортный ролик.
Размеры и масса трансформаторов ТСЗГЛФ11 и ТСДЗГЛФ11

Трансформаторы серии ТС3ГЛФ11, ТСДЗГЛФ11 мощностью 100...2500 кВ·А


кожух;
табличка;
пластина для подъема трансформатора;
вывод НН;
ввод ВН;
зажим заземления;
клеммы регулирования напряжения;
ящик управления вентиляторами (для ТСДЗГ ЛФ11);
ящик ввода кабелей ВН (по заказу) см. приложение;
транспортный ролик.
Схема подключения температурного реле ТР-100 для трансформаторов ТСГЛ, ТСДГЛ, ТСЗГЛ, ТСДЗГЛ, ТСЗГЛФ, ТСДЗГЛФ, ТС3ГЛ11, ТСДЗГЛ11, ТВЗГЛФ11, ТСДЗГПФ11

Заключение
Система менеджмента качества проектирования, разработки, производства и поставки трансформаторов и комплектных трансформаторных подстанций сертифицирована международным органом по сертификации «DEKRA», Германия (№ 99535 от 01.01.2000), на соответствие МС ИСО 90071:2015 и национальным органом по сертификации БелГИСС (№ ВУ/112 05.0.0.0034 от 24.12.1999) на соответствие СТБ ISO 9001-2015.
Силовые трансформаторы соответствуют международным стандартам серии МЭК 60076 и сертифицированы Европейским нотифицированным органом «Словацкий электротехнический институт EVPU» (сертификаты соответствия № 00547/101/1/2005, № 00548/101/1/2005).
Гарантийный срок эксплуатации трансформаторов:
5 лет с даты выпуска.
Предприятие выполняет по заказу шеф-монтажные и пусконаладочные работы изготавливаемой заводом продукции на объектах заказчиков (потребителей).
