
Основные технические параметры КТПТАС, КТППАС мощностью 63-400 кВА

Примечание: По требованию заказчика схема и группа соединения обмоток трансформатора, а также токи и количество отходящих фидеров могут быть изменены.
*По согласованию с заказчиком.
Габаритные размеры и масса КТПТАС мощностью 63...250 кВ•А

Примечание к схеме:
Масса без трансформатора не более:
КТП с кабельным вводом - 1880 кг;
КТП с воздушным вводом - 1630 кг.
шкаф трансформаторного ввода (для КТП с кабельным вводом ВН);
шкаф трансформатора и РУНН;
шкаф воздушного ввода ВН (для КТП с воздушным вводом ВН);
шкаф воздушных выводов НН (для КТП с воздушными и воздушно- кабельными выводами НН);
силовой трансформатор (устанавливается по заказу);
отсек силового трансформатора;
отсек РУНН.
Разметка отверстий в КТПТАС (с воздушным вводом) мощностью 63...250 кВ•А для крепления на фундаменте и ввода кабелей НН

отсек трансформатора;
отсек РУНН.
Разметка отверстий в КТПТАС (с кабельным вводом) мощностью 63...250 кВ•А для крепления на фундаменте и ввода кабелей ВН, НН

Примечание к схеме:
шкаф трансформаторного ввода;
отсек трансформатора;
отсек РУНН.
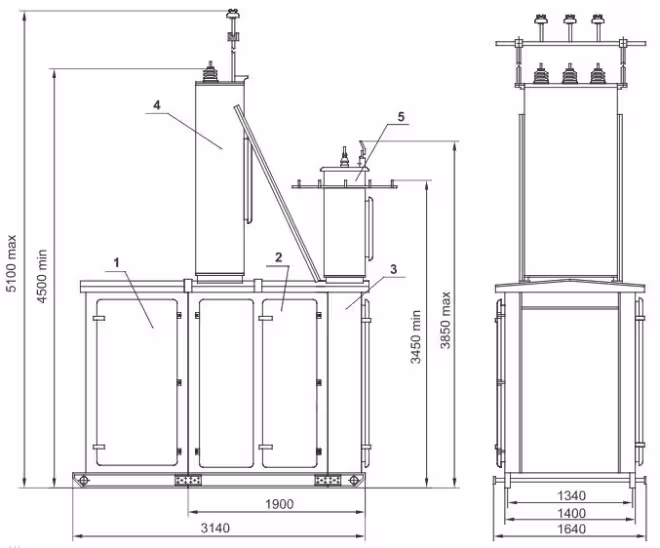
Габаритные размеры и масса КТПТАС мощностью 400 кВ•А

Примечание к схеме:
Масса КТП с трансформатором, кг, не более:
с воздушным вводом - 2850;
с кабельным вводом - 3350.
шкаф трансформаторного ввода (для КТП с кабельным вводом);
шкаф трансформатора;
шкаф РУНН;
шкаф воздушного ввода ВН (для КТП с воздушным вводом);
шкаф воздушных выводов НН (для КТП с воздушными выводами).
Разметка отверстий в КТПТАС (с кабельным вводом) мощностью 400 кВ•А для крепления на фундаменте и ввода кабелей НН

Примечание к схеме:
шкаф трансформаторного ввода;
шкаф трансформатора;
шкаф РУНН.
Схема электрическая принципиальная КТПТАС мощностью 63...400 кВ•А

Примечание к схеме:
В КТП с кабельным вводом отсутствуют ограничители перенапряжений FV1-FVЗ.
В КТП с воздушным вводом отсутствует SB1.
В КТП с кабельными выводами отсутствуют реле тока КА1-КА4 и ограничители перенапряжений FV4-FV6.
Линии №3 и №4 имеют кабельные выводы.
В КТП мощностью 63-250 кВА отсутствуют элементы Т2, SFб, ХS1, KK1, TA4, TA5.
